Appartement F2 à vendre 2 pièces - 26,73 m2 BOULOGNE BILLANCOURT - 92
215 000 €
- Honoraires charge vendeur
-
1/6
-
2/6
-
3/6
-
4/6
-
5/6
-
6/6

Description
Au pied des commerces de la rue du Point du Jour, à moins de 10 min du métro ligne 9 « Marcel Sembat », du bus 123 et du tramway T2 « Les Moulineaux », ce 2 pièces bénéficie d'un emplacement et d'un cadre de vie idéal.
Au 3ème étage avec ascenseur d'une copropriété entretenue, au cœur d'une rue calme et à sens unique, l'agence Century 21 Jaurès-Reine vous présente un bien parfait pour une première acquisition ou un investissement locatif !
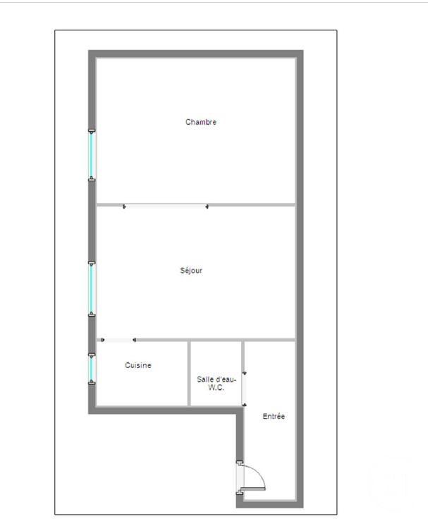
L'appartement est composé d'une entrée, d'un séjour exposé Est avec cuisine, d'une salle d'eau avec WC et d'une chambre.
Une cave vient compléter cette offre.
Si vous souhaitez le visiter, n'hésitez pas à nous contacter !
Localisation
Afficher sur la carte :
Vue globale
- Surface totale : 26,7 m2
- Surface habitable : 26,7 m2
- Type d'appartement : F2
- Étage : 3ème
-
Nombre de pièces : 2
- Entrée (4,2 m2)
- Séjour (9,6 m2)
- Chambre (9,7 m2)
- Salle d'eau/WC (1,2 m2)
- Cuisine (2,1 m2)
Équipements
Les plus
Dégagée
Général
- Chauffage : Individuel individuel electricité
- Eau chaude : Ballon électrique
- Ascenseur
- Digicode
À savoir
- Charges / mois : 93 €
- Taxe foncière : 340 €
Copropriété
- Nombre de Lots : 15
- Charges courantes par an : 1116,0 €
- Pas de procédure en cours
Les performances énergétiques
Logement à consommation énergétique excessive : classe F.
Date du DPE : 28/01/2025
Montant estimé des dépenses annuelles d'énergie pour un usage standard entre 930,0 € et 1290,0 €, indexées à l'année 2025 (abonnements compris).